search
Search
Search tenancies
Sign in
s.dk
To s.dk
arrow_back
Back to building
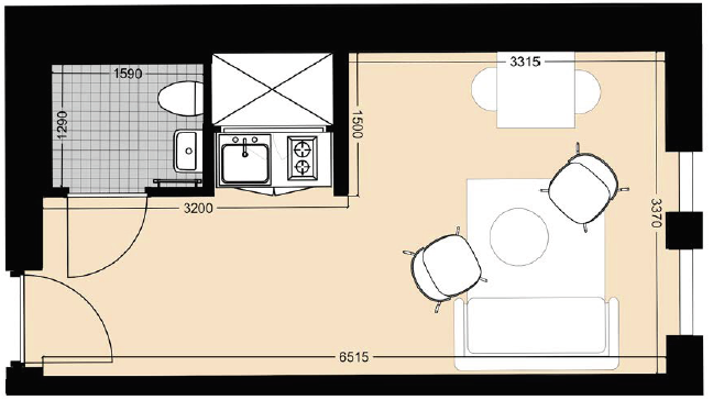
Stadens Vænge 25, 2100 København Ø, Denmark
Tenancy information
Address
Stadens Vænge 25, 2100 København Ø, Denmark
Tenancy number
401-57-70
No rooms
1
Area
37
Children allowed
No
Facilities
Own toilet
Own shower
Own kitchen
Stadens Vænge 25, 2100 København Ø, Denmark
×