arrow_back Back to building

Lysalleen 2, -, 4000 Roskilde, Denmark

Tenancy information

Address
Lysalleen 2, -, 4000 Roskilde, Denmark
Tenancy number
402-245-2
Takeover condition
As is
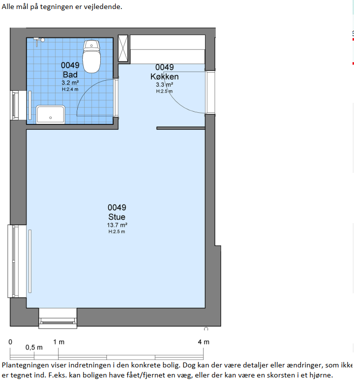
No rooms
2
Area
37
Rent determined
Balance rent
Children allowed
Yes

Facilities

  • Own toilet
  • Own shower
  • Own kitchen
  • Refrigerator
  • Disability housing